Apartament w Hondón de las Nieves - N8776

Hondón de las Nieves, Costa Blanca
280 000 €

  • Ref:N8776
  • Typ nieruchomości:Apartament
  • Rynek:Rynek pierwotny
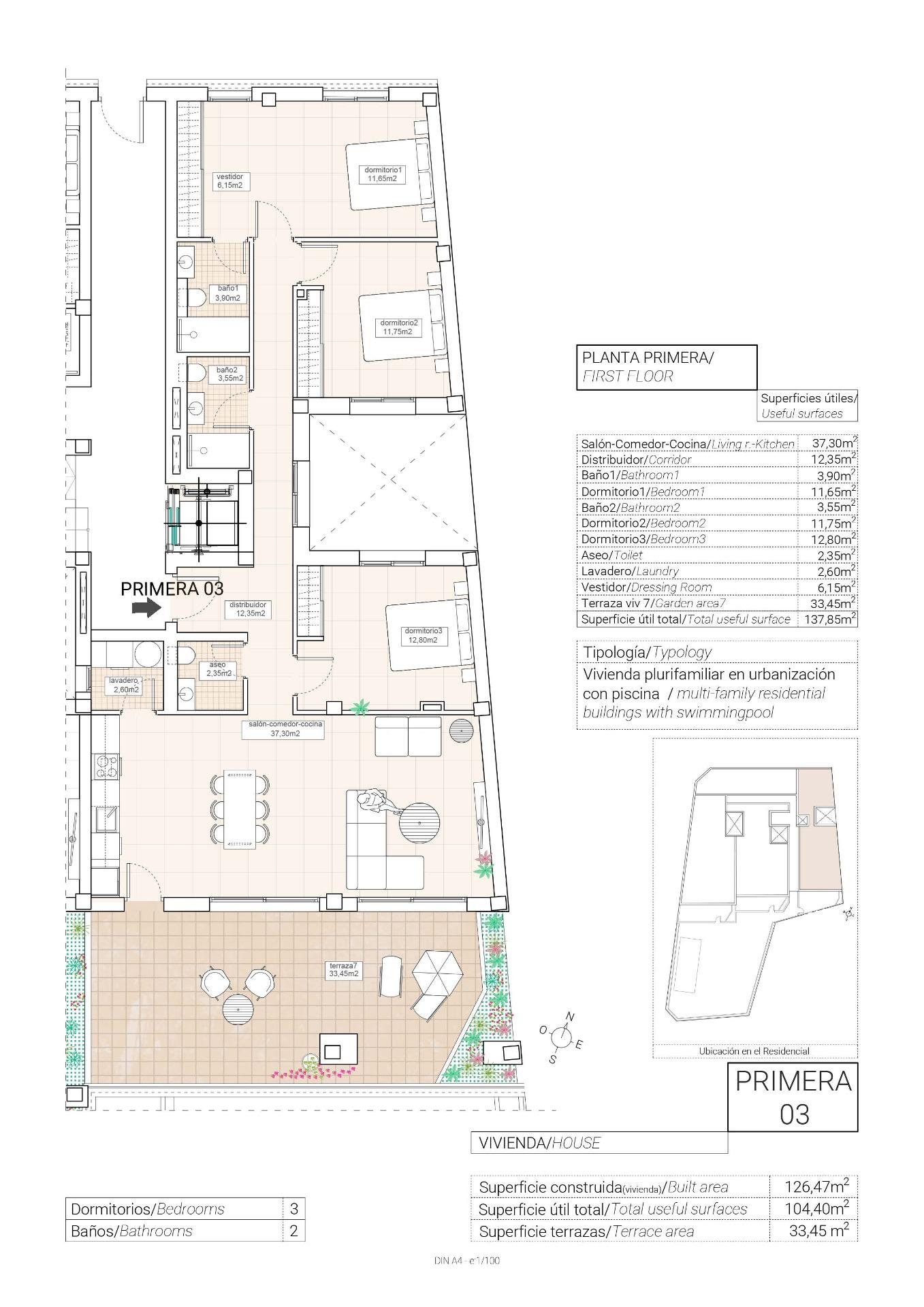
  • Powierzchnia użytkowa:126 m2
  • Sypialnie:3
  • Łazienki:2

PDF
Udostępnij

Opis nieruchomości

Ekskluzywne nowe apartamenty z widokiem na winnice w Hondón de las Nieves Nowoczesne domy w wyjątkowym otoczeniu przyrody Odkryj nową inwestycję mieszkaniową w Hondón de las Nieves, uroczej wiosce położonej w pięknej dolinie otoczonej gajami oliwnymi i migdałowymi. Osiedle oferuje 15 ekskluzywnych domów z 2 i 3 sypialniami, zaprojektowanych z myślą o maksymalnym komforcie, efektywności energetycznej i wspaniałych widokach na winnice Vinalopó. Położona w Vinalopó Medio, ta spokojna enklawa jest idealna dla osób poszukujących zrelaksowanego śródziemnomorskiego stylu życia, z łatwym dostępem do natury i wszystkich niezbędnych usług. Wysokiej jakości funkcje i nowoczesny design Każde mieszkanie zostało zaprojektowane z najwyższej jakości materiałów i ma funkcjonalny układ: Przestronne i otwarte przestrzenie mieszkalne, idealne do nowoczesnego życia. W pełni wyposażone kuchnie z granitowymi blatami. Najwyższej klasy łazienki z wbudowanymi spłuczkami i najwyższej jakości urządzeniami sanitarnymi. Efektywność energetyczna z systemem aerotermalnym do ciepłej wody. Wstępna instalacja klimatyzacji kanałowej, gwarantująca komfort o każdej porze roku. Aluminiowe okna z podwójnymi szybami, zapewniające izolację termiczną i akustyczną. Wzmocnione drzwi wejściowe zapewniające spokój ducha. Miejsce parkingowe i komórka lokatorska w piwnicy wliczone w cenę. Winda w budynku, zapewniająca dostępność i komfort. Panele słoneczne na dachu w celu poprawy efektywności energetycznej i zmniejszenia kosztów utrzymania. Ponadto w budynku znajduje się wspólny basen, idealny do korzystania ze śródziemnomorskiego klimatu. Uprzywilejowana lokalizacja w Hondón de las Nieves Hondón de las Nieves to miejscowość z bogatą tradycją uprawy winorośli, słynąca z winogron stołowych o nazwie pochodzenia Vinalopó. Otoczony przez Sierra de Crevillente obszar oferuje liczne szlaki turystyczne, obszary przyrodnicze oraz bogatą ofertę kulturalną i historyczną. Z nowego domu będziesz miał szybki dostęp do głównych atrakcji w okolicy: Lotnisko Alicante - 30 km (30 minut jazdy samochodem). Plaże Alicante - 35 km (35 minut jazdy samochodem) Elche - 20 km (20 minut jazdy samochodem) Park przyrody Crevillente - 10 km (15 minut jazdy samochodem) Pola golfowe - 25 km (30 minut jazdy samochodem) Idealny dom na wybrzeżu Costa Blanca Ciesz się spokojem doliny Hondón, nie rezygnując z bliskości Alicante i Elche. Niezależnie od tego, czy chodzi o stałe miejsce zamieszkania, dom wakacyjny czy nieruchomość inwestycyjną, te nowoczesne mieszkania są bezkonkurencyjnym wyborem. Skontaktuj się z nami już dziś, aby uzyskać więcej informacji lub umówić się na oglądanie.

Udogodnienia

  • Basen wspólny

Lokalizacja

Kontakt w sprawie oferty

Dane kontaktowe

Calle Isla de Tabarca 2
03189 Cabo Roig, Orihuela Costa

Znajdź nas w social mediach

Podobne oferty z okolicy

Wybierz opcję kontaktu
Oddzwonimy do Ciebie
Godziny pracy: 9:00-17:30