Willa w Torrevieja - 9570

Torrevieja, Costa Blanca
369 000 €

  • Ref:9570
  • Typ nieruchomości:Willa
  • Rynek:Rynek pierwotny
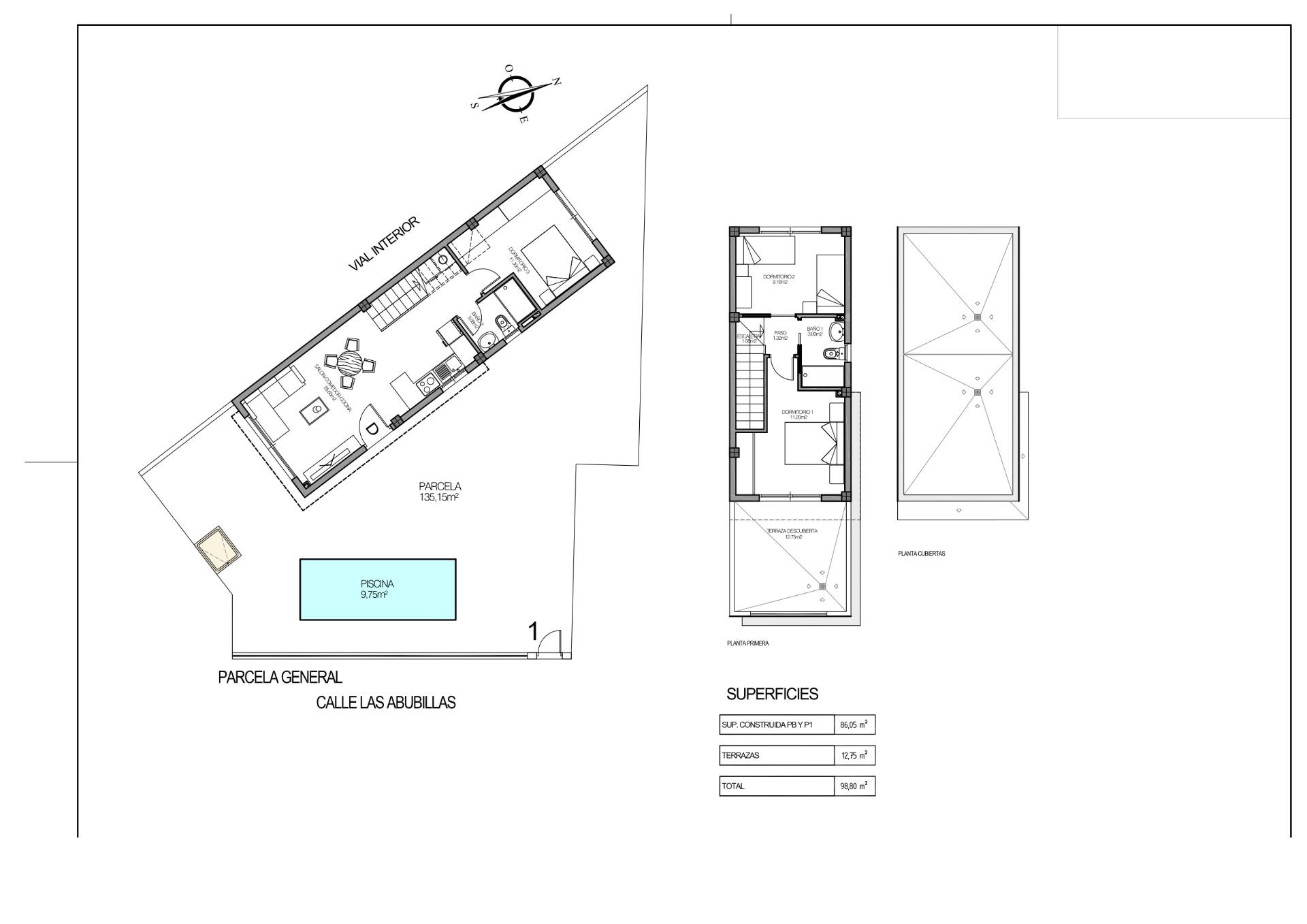
  • Powierzchnia użytkowa:99 m2
  • Powierzchnia działki:114 m2
  • Sypialnie:3
  • Łazienki:2

PDF
Udostępnij

Opis nieruchomości

Mamy przyjemność zaprezentować ten nowy projekt, który obejmuje łącznie 7 niezależnych willi, wszystkie rozmieszczone na dwóch piętrach i zbudowane według wysokich standardów jakości. Na parterze wille mają otwarty plan łączący kuchnię z salonem, a także przestronną sypialnię z szafą wnękową i łazienkę. Na piętrze znajdują się dwie dodatkowe przestronne sypialnie, każda z szafą wnękową i łazienką en suite. Główna sypialnia ma bezpośredni dostęp do przyjemnego i słonecznego tarasu. Wille są wyposażone w preinstalację klimatyzacji kanałowej, sprzęt AGD, oświetlenie, drzwi prysznicowe i rolety elektryczne. W okolicy inwestycji znajdziesz szeroki wybór doskonałych restauracji, duże centrum handlowe Habaneras i wszystkie niezbędne udogodnienia. Ponadto, w krótkiej odległości samochodem można dotrzeć do kilku pól golfowych oraz pięknych plaż Torrevieja, Orihuela Costa i Guardamar del Segura. Nie wahaj się skontaktować z agentami Home Pandora, aby uzyskać więcej szczegółów!

Udogodnienia

  • Szafy wnękowe
  • Basen prywatny

Lokalizacja

Kontakt w sprawie oferty

Dane kontaktowe

Calle Isla de Tabarca 2
03189 Cabo Roig, Orihuela Costa

Znajdź nas w social mediach

Podobne oferty z okolicy

Wybierz opcję kontaktu
Oddzwonimy do Ciebie
Godziny pracy: 9:00-17:30